Amersfoort

Langegracht 39

Verkocht
Vraagprijs € 1.250.000,- k.k.
  • Woonoppervlakte 172 m2
  • Perceeloppervlakte 129 m2
  • Inhoud: 810 m3
  • Bouwjaar: 1887
Vragen of een bezichtiging plannen? Neem contact op met Roland
Vragen of een bezichtiging plannen? Neem contact op met Roland
Roland de Ruiter makelaar amersfoort huis kopen huis verkopen

Roland de Ruiter

Eigenaar Amersfoort
Register Makelaar - Taxateur

  • 06 - 53 64 63 44
  • deruiter@deruitermakelaarshuis.nl
  • Kamp 6, 3811 AR Amersfoort

Omschrijving

“Wat een waanzinnig mooi en ruim huis met een geweldig uitzicht op de mooiste grachten van de binnenstad.” Dat horen wij zo vaak van bezoekers en passanten; aldus de huidige bewoners.

Op een toplocatie in de historische binnenstad ligt dit fraai gerenoveerde grachtenpand (gemeentelijk monument) met originele stijlkenmerken, gebogen dakspanten, een gewelfkelder en een heerlijke zonnige stadstuin op het zuid-westen met nieuwe houten berging en achterom.

Aan de voorzijde kijkt u prachtig uit over het water van de Langegracht en het Havik. Rustig gelegen en toch op loopafstand van winkelstraten, markt, de gezellige pleinen, Centraal Station en het Eemkwartier.

Het pand is door de huidige eigenaren volledig gerenoveerd, gemoderniseerd en verduurzaamd (dubbel (monumentaal) glas en dak/muur isolatie). Ook is de slaapverdieping voorzien van airco’s. De renovatie heeft plaatsgevonden met behoud van de karakteristieke elementen.

Bouwjaar 1887. Indeling: Door een statige voordeur bereikt u de entree / hal met originele marmeren vloer, nieuwe groepenkast en een luxe hangend toilet met fonteintje en daglicht. De gang loopt door tot de tuindeur, zodat er van beide zijden licht invalt. Een stenen trap geeft toegang tot de volledig onlangs gerenoveerde gewelfkelder van 19 m2, ideaal voor uw hobby, wijn- of provisieopslag.

Aan de voorzijde ligt de bibliotheek / woon / eetkamer met 2 hoge ramen voorzien van eiken vloerdelen, originele glas in lood ramen, binnenluiken en ‘vensterbanken’. Van hieruit kijkt u prachtig uit over het stelsel van grachten en boogbruggen. De lange wand is voorzien van een Belgisch hardstenen schouw (2011) met gashaard en handgemaakte boekenkasten. Aan de tuinzijde bevindt zich een luxe handgemaakte woonkeuken (een echte ‘Paul van de Kooi’) met extra diep betonnen aanrechtblad, een Viking fornuis / oven met 6 wokbranders en grilplaat, vaatwasser alsmede een kastenwand met o.a. een Amerikaanse koel-/vrieskast.

De openslaande tuindeuren geven toegang tot een diepe stadstuin op het zuid-westen met zonneterras waar u heerlijk kunt genieten van uw privacy en het groen. Achterin de tuin is een nieuwe houten berging geplaatst en bevindt zich een achterom.

1e verdieping: Via een statige trapopgang kom je op de overloop van de 1e verdieping waar direct de nieuwe zwart stalen glaspui in het oog springt. Dat maakt de toegang tot een geweldige 2e woonkamer met veel privacy extra fraai. Ook hier liggen eiken vloerdelen, is een tweede gashaard aanwezig.

Het uitzicht op deze woonetage overtreft alles en is werkelijk uniek voor de Amersfoortse binnenstad. Het is een hele fijne kamer om de avonden in door te brengen. Aan de tuinzijde bevindt zich een groot raam op de middagzon. Eventueel kan hier ook een extra slaap-/ werkkamer worden gecreëerd. In een nis aan de achterzijde is een luxe pantry geplaatst met vaatwasser, 2 gaspitten en een open vak voor een oven.

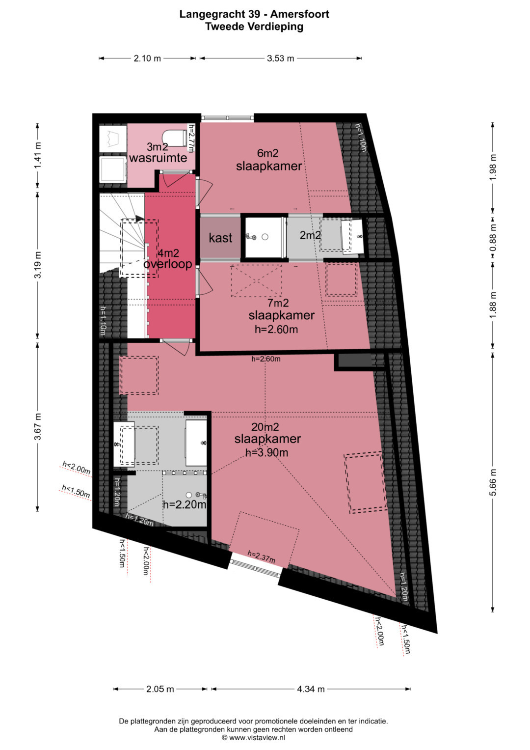
2e verdieping: Deze etage is geheel nieuw ingedeeld, waarbij de fraaie originele boogspanten in het oog springen in ieder vertrek. Aan de voorzijde ligt een royale master-bedroom voorzien van airco, kastenwand, dakkapel, 2 Veluxramen en een nokhoogte van 3,90 meter. Aansluitend een luxe half open badkamer met inloop-stortdouche, twee aparte wastafelmeubels en Veluxraam. Aan de andere zijde liggen 2 mooie (logeer-) kamers met een praktische doucheruimte en wastafel in het midden. Naast een kastruimte is er ook airco aanwezig en een Vlizotrap met toegang naar een ruime bergvliering. Via een driehoekig binnenraam naar de
master-bedroom is hier ook daglicht aanwezig.

Tot slot een separate toiletruimte met wasmachine-/ droger-aansluiting, opstelling CV-HR-combiketel en mechanische ventilator.

De bijzonderheden op een rij:
– Gemeentelijke Monument en Beschermd stadsgezicht
– Grotendeels voorzien van dubbel (HR++) glas
– Diverse originele glas-in-lood ramen aanwezig
– alle raambekleding worden elektrisch bediend
– Plafondhoogte van de begane grond 3,7 meter
– Extern en intern schilderwerk recentelijk uitgevoerd
– Een origineel smeedijzeren hek omheind het perceel aan de straatzijde
– De woonoppervlakte bedraagt 172 m².

Droomt u ook al zolang van het wonen in een volledig gerenoveerd grachtenpand in de historische binnenstad? De Ruiter Makelaarshuis leidt u graag rond.

Locatie

Streetview

Zonnestand

Heeft u niet kunnen vinden wat u zocht?

Laat dan een automatische zoekopdracht achter!

Neem contact met ons op

Heeft u vragen of wilt u graag een afspraak plannen? Bel ons dan gerust op of stuur ons een e-mail bericht. Dan reageren wij zo spoedig mogelijk!

"*" geeft vereiste velden aan

Dit veld is bedoeld voor validatiedoeleinden en moet niet worden gewijzigd.
Door gebruik te maken van het contactformulier ga je akkoord met de verwerking van je persoongegevens volgens onze privacyverklaring
Vragen of afspraak maken?

Stuur ons een bericht op Whatsapp